Hommelseweg 327 - Arnhem
Omschrijving
Sommige woningen voelen meteen vertrouwd aan. Hommelseweg nummer 327 is precies zo’n plek: ruim, warm, karaktervol en verrassend diep. Terwijl je door de glas-in-lood schuifdeuren kijkt, zie je het licht van beide kanten binnenvallen — het soort licht waardoor je direct denkt: ja, dit klopt. Dit royale benedenwoning-appartement combineert de charme van begin 1900 met de ruimte en rust van nu. En geloof me: huizen met zó’n fijne sfeer en een tuin van dit formaat blijven nooit lang beschikbaar. Plan dus snel een bezichtiging, want dit is er eentje die je live moet voelen.
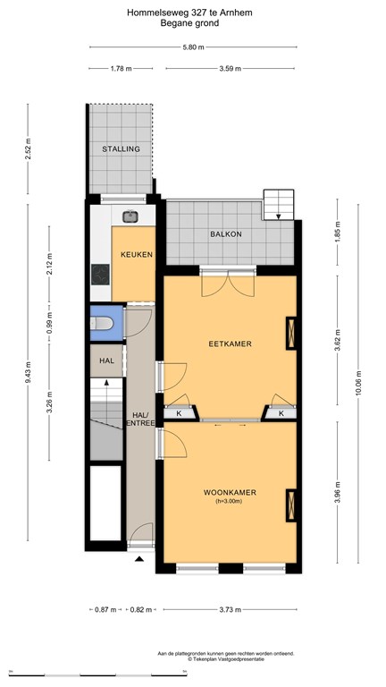
Je stapt binnen in een diepe hal die meteen laat zien hoe groot de woning is. Links vind je een separaat toilet en loop je rechtdoor de keuken in: een lichte, charmante ruimte met blauwe kastfronten, een groot raam richting het groen en genoeg plek om lekker te koken. Via de hal loop je door naar de eetkamer, die met stijlvolle schuifdeuren verbonden is met de woonkamer. De woonkamer heeft een heerlijke lichtinval dankzij de hoge ramen aan de voorzijde, waardoor de kamer uitnodigend en warm aanvoelt. Aan de achterzijde grenst de eetkamer aan een overdekt balkon, een fijne plek om even buiten te zitten zonder meteen de tuin in te hoeven.
Via een vaste trap bereik je het souterrain, waar de hal ruimte geeft aan twee slaapkamers. De eerste slaapkamer beschikt over ingebouwde kastruimte en mooie ramen. De tweede slaapkamer heeft dubbele deuren die direct openen naar een terras — ideaal voor wie graag wakker wordt met frisse lucht of voor kinderen die graag naar buiten hupsen. De badkamer is verrassend ruim en voorzien van een ligbad, douche en een strak wastafel. Achterin ligt de tuin: groen en beschut. Je hebt hier een zeldzame hoeveelheid privacy midden in de stad, met plek voor een loungeset, een eettafel of een speelplek voor kinderen.
Wonen aan de Hommelseweg betekent wonen in een van de meest gewilde wijken van Arnhem: rustig én op loopafstand van alles wat het stadsleven leuk maakt. Je zit dicht bij Park Sonsbeek, ideaal voor hardlopers, wandelaars of een spontane picknick. De gezellige Steenstraat ligt om de hoek: supermarkten, koffiezaakjes, speciaalzaken — alles binnen handbereik. Het trein- en busstation zijn snel bereikbaar, net als het bruisende centrum. De wijk staat bekend om zijn karaktervolle panden en groene straten. Met de fiets ben je zo in Klarendal, het Modekwartier en de hippe horeca in het Spijkerkwartier. Parkeerplekken zijn goed te vinden, ook voor bezoekers. De Hommelseweg zelf is breed opgezet, wat zorgt voor een prettige woonbeleving. Arnhem is bovendien perfect gelegen voor wie zowel richting Utrecht, Nijmegen als de Randstad reist. Kortom: je woont hier rustig, ruim, groen én toch stads.
Bijzonderheden:
– Royaal benedenhuis met hoog souterrain (2,7 meter)
– Authentieke glas-in-lood en-suite schuifdeuren
– Groene stadstuin met achterom en voortuin
– Twee ruime slaapkamers
– Balkon én terras
– Lichte woonkamer met hoge plafonds
– Eikenhouten vloer in de woon- en eetkamer
– Karaktervolle details zoals paneeldeuren en ornamenten
– Centrale ligging nabij park Sonsbeek en de Steenstraat
Wil je deze sfeer zelf ervaren? Maak snel een afspraak voor een bezichtiging — dit is zo’n woning die je niet wilt missen.
Kenmerken
| Prijs | € 425.000,- k.k. |
|---|---|
| Woonoppervlakte | 90 m2 |
| Inhoud | 354 m3 |
| Aantal kamers | 4 |
| Bouwjaar | 1909 |





































