Dalweg 29 - Arnhem
Omschrijving
Je merkt het meteen wanneer je hier binnenkomt: dit huis voelt royaal, rustig en verrassend warm. Dalweg 29 is zo’n plek waar je na één blik al denkt: ja, dit klopt. De erker vangt het licht, de woonkamer is groot en sfeervol en de tuin ligt als een groene oase rondom je heen. Nog voordat je alles hebt gezien, zie je jezelf hier al wonen.
Wacht dus niet te lang: woningen met deze ruimte en sfeer komen zelden voorbij. Bel of mail me gerust, dan plannen we direct een bezichtiging.
De ligging in Arnhem-Noord is uniek: rustig, groen én op loopafstand van Park Sonsbeek en het Centrum. De woning is in 1998 volledig vernieuwd en uitgebreid met een aanbouw in lijn met de originele architectuur. En de afgelopen jaren verder verduurzaamd met o.a. 18 zonnepanelen, muurisolatie, dubbele beglazing en een EV laadvoorziening.
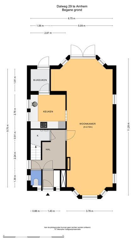
De hal geeft een fijne binnenkomst met toegang tot het toilet en voldoende ruimte voor jassen en schoenen. Loop je rechts, dan kom je in de woonkamer—breed, licht en met meerdere zithoeken die dankzij de erkers extra karakter krijgen. De open verbinding met de eetkamer maakt het een heerlijke leefruimte waar je makkelijk met een groot gezelschap kunt tafelen. De moderne keuken ligt centraal in het huis en is strak, praktisch en uitgerust met inbouwapparatuur. Direct naast de keuken vind je de bijkeuken, ideaal voor extra voorraad, wasmachine of gewoon dat wat je liever uit het zicht hebt. Via dubbele deuren stap je de tuin in, een groene plek met terrassen, niveauverschillen en privacy. Helemaal achterin staat een vrijstaand study-huisje—perfect als thuiskantoor, atelier of rustige chillplek. De grote vrijstaande berging ernaast maakt het plaatje compleet.
Op de eerste verdieping liggen twee ruime slaapkamers en een derde, kleinere multifunctionele kamer met inbouwkasten. Deze kamer heeft prettig daglicht en geeft via een deur direct toegang tot het ruime dakterras. Een fijne plek voor een werkplek, babykamer of logeerplek. De badkamer is licht en royaal met een ligbad, douche, wastafel en toilet. De slaapkamer aan de voorzijde beschikt over een balkon.
De tweede verdieping is praktisch ingedeeld. Op de overloop bevindt zich het wasgedeelte met opstelling voor wasmachine en droger, evenals diverse opbergmogelijkheden en de cv-installatie. Via een aparte deur is er toegang tot een prettige, functionele kamer met dakramen, geschikt als tienerkamer, werkkamer of logeerkamer.
Wonen aan de Dalweg betekent wonen op een van de rustigste en meest groene plekjes van Arnhem-Noord. De ligging is een van de grootste pluspunten van dit huis. Binnen vijf minuten wandel je Sonsbeekpark in, met zijn weides, waterpartijen en bos. Ook Arnhem Centrum, scholen, sportclubs, Burgers’ Zoo en het Openluchtmuseum liggen allemaal in de directe omgeving. Station Arnhem Centraal bereik je binnen tien minuten fietsen, en met de auto zit je in enkele minuten op de A12 of A50. Het is precies die combinatie van ruimte, natuur en stads gemak die wonen aan de Dalweg zo geliefd maakt.
Bijzonderheden
– Ruime jaren ’30 woning met karakter
– Compleet vernieuwd + aanbouw in 1998
– Royale woonkamer met erker en openslaande deuren
– Moderne keuken met inbouwapparatuur
– Grote, groene tuin met meerdere terrassen
– Vrijstaand study-huisje (ca. 2,56 × 2,44 m)
– Vrijstaande berging (ca. 2,88 × 4,02 m)
– Drie kamers op de eerste verdieping (incl. kamer met toegang tot dakterras)
– Royale badkamer met bad, douche en toilet
– Extra slaapkamer op de tweede verdieping
– Eigen oprit + vrij parkeren
– Energiezuinig door zonnepanelen en isolatie, EV laadpaal aanwezig
– Gelegen in geliefd Arnhem-Noord, nabij Sonsbeekpark en centrum
Benieuwd hoe dit huis voelt wanneer je er écht doorheen loopt? Laat het ons weten.
Kenmerken
| Prijs | € 975.000,- k.k. |
|---|---|
| Woonoppervlakte | 135 m2 |
| Inhoud | 509 m3 |
| Aantal kamers | 5 |
| Bouwjaar | 1925 |






































































